Elena Terumi Woods

Terumi Woods is a specification writer and licensed architect focused on strengthening construction documentation and project clarity.

 
600_62COMBINED.jpg
 

Resume

 

My background is varied, what you might call non-traditional, and this has given me a breadth of professional experience.

 

Experience

Sr. Specification Writer
Conspectus, Inc.

Project Designer
Framestudio

Design Consultant
Various Clients



Project Manager
Gardiner&Theobald - United Nations

Architectural Archivist
United Nations Archives

Staff - Variety of rolls
Mock/Wallace Architects

Certifications

Certified Construction Specifier (CCS®)
Construction Specifications Institute (CSI)

Certified Construction Contract Administrator (CCCA®)
Construction Specifications Institute (CSI)

Construction Documents Technology (CDT®)
Construction Specifications Institute (CSI)

LEEP AP Building Design + Construction (BD+C)
US Green Building Council

 

Education

Construction Management Architecture
City College of San Francisco

B.A. Urban Geography
Hunter College - CUNY

 
color-3.png

Work Samples

Vertical Addition - San Francisco

Role: construction and permit drawings

Mock/Wallace Architects

1066 Sq Ft to 1927 Sq Ft

New Community Center and Library

Role: design through construction

Mock/Wallace Architects - Barcelon Jang Architecture

34,000 Sq. Ft.

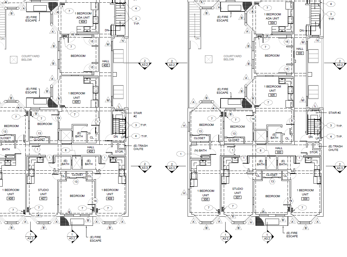
Community Housing Renovation - San Francisco

Role: design through permit drawings

Mock/Wallace Architects

24,000 Sq. Ft.

Group Research Project

Role: GIS analysis and census data aggregation

Hunter College - CUNY

United Nations Capital Master Plan - Headquarters

Role: Archivist and Project Manager (closeout)

Gardiner & Theobald - programme & cost management

2.5 million Sq. Ft.

Horizontal & Vertical Addition - San Mateo

Role: through permit acquisition

Framestudio

1263 Sq. Ft to 1970 Sq. Ft.

Stair refurbishment

Role: existing conditions assessment to permit drawings

Framestudio

Sketching